Download der Dokumentation als PDF Download Anmeldeformular für Interessenten
Wallgrabenweg 3 | 4663 Aarburg

Lage
Das Neubauprojekt am Wallgraben-weg 3 überzeugt mit besonnter und ruhiger Lage nah am Aare-Ufer und trotzdem direkt angrenzend ans Städtchen Aarburg. Der Standort ist perfekt vernetzt und doch idyllisch:
- Aare-Ufer 2 min. zu Fuss
- Autobahn A1/A2 1.5 km
- Bushaltestelle Städtli 5 min. zu Fuss
- Bahnhof Olten 3.5 km
- Bahnhof Aarburg 1.5 km
- Kantonsspital Olten 4 km
Fakt
Aarburg verbindet Ruhe und Natur mit modernem Komfort und einer her-vorragend ausgebauten Infrastruktur. Eine ideale Kombination für alle, die Lebensqualität schätzen.

Architektur
In diesem modernen Neubau erwartet Sie hochwertiger Wohnkomfort in durchdachter Architektur im Loft-Style und stilvoller Umgebung. Die Wohnungen bestechen durch grosszügige Grundrisse, helle Räume und nach Westen ausgerichteten Balkonen oder Terrassen, welche mit Abendsonne zum Verweilen einladen.
Der Innenausbau lässt keine Wünsche offen und überzeugen durch hochwertige Bodenbeläge aus Parkett und Feinsteinzeugplatten, moderne Einbauküchen sowie einen eigenen Waschturm in der Wohnung. Nebst der grosszügigen Wohnfläche mit separatem Kellerabteil ist im Untergeschoss ein Fahrradabstellraum vorgesehen. Die Photovoltaikanlage auf dem Flachdach unterstreicht das nachhaltige Energiekonzept der Liegenschaft, welches durch eine Erdsonden-Heizung besticht.
Sichern Sie sich jetzt Ihr neues Zuhause in einem erstklassigen Neubau! Wir freuen uns auf Ihre Kontaktaufnahme zur Erstvermietung.
Wohnungs-Details
|
Geschoss |
Bezeichnung |
Ausrichtung |
Zimmer |
NWF |
Monatsmiete netto |
HK/BK akonto |
Monatsmiete brutto |
|
EG li. links |
EG 01 |
West |
4.5 |
99 m2 |
2’070 |
230 |
2’300 |
|
EG li. mitte |
EG 02 |
West |
Loft 2.5 |
59 m2 |
1’380 |
170 |
1’550 |
|
EG li. rechts |
EG 03 |
West |
Loft 2.5 |
59 m2 |
1’380 |
170 |
1’550 |
|
EG re. links |
EG 04 |
West |
1.5 |
43 m2 |
1’230 |
120 |
1’350 |
|
EG re. mitte |
EG 05 |
West |
Loft 3.5 |
74 m2 |
1’740 |
190 |
1’930 |
|
EG re. rechts |
EG 06 |
West |
3.5 |
86 m2 |
1’940 |
210 |
2’150 |
|
1. OG li. links |
1. OG 01 |
West |
4.5 |
99 m2 |
2’070 |
230 |
2’300 |
|
1. OG li. mitte |
1. OG 02 |
West |
Loft 2.5 |
59 m2 |
1’380 |
170 |
1’550 |
|
1. OG li. rechts |
1. OG 03 |
West |
Loft 2.5 |
59 m2 |
1’380 |
170 |
1’550 |
|
1. OG re. links |
1. OG 04 |
West |
1.5 |
43 m2 |
1’230 |
120 |
1’350 |
|
1. OG re. mitte |
1. OG 05 |
West |
Loft 3.5 |
74 m2 |
1’740 |
190 |
1’930 |
|
1. OG re. rechts |
1. OG 06 |
West |
3.5 |
86 m2 |
1’940 |
210 |
2’150 |
|
2. OG li. links |
2. OG 01 |
West |
4.5 |
99 m2 |
2’170 |
230 |
2’400 |
|
2. OG li. mitte |
2. OG 02 |
West |
Loft 2.5 |
59 m2 |
1’480 |
170 |
1’650 |
|
2. OG li. rechts |
2. OG 03 |
West |
Loft 2.5 |
59 m2 |
1’480 |
170 |
1’650 |
|
2. OG re. links |
2. OG 04 |
West |
1.5 |
43 m2 |
1’280 |
120 |
1’400 |
|
2. OG re. mitte |
2. OG 05 |
West |
Loft 3.5 |
74 m2 |
1’790 |
190 |
1’980 |
|
2. OG re. rechts |
2. OG 06 |
West |
3.5 |
86 m2 |
2’040 |
210 |
2’250 |
|
Attika links |
Attika 01 |
West |
3.5 |
79 m2 |
2’190 |
210 |
2’400 |
|
Attika rechts |
Attika 02 |
West |
3.5 |
79 m2 |
2’190 |
210 |
2’400 |
|
AEH UG |
20 x E-Einstellplätze |
150 |
|||||
Grundriss Erdgeschoss / Obergeschosse 1. + 2.

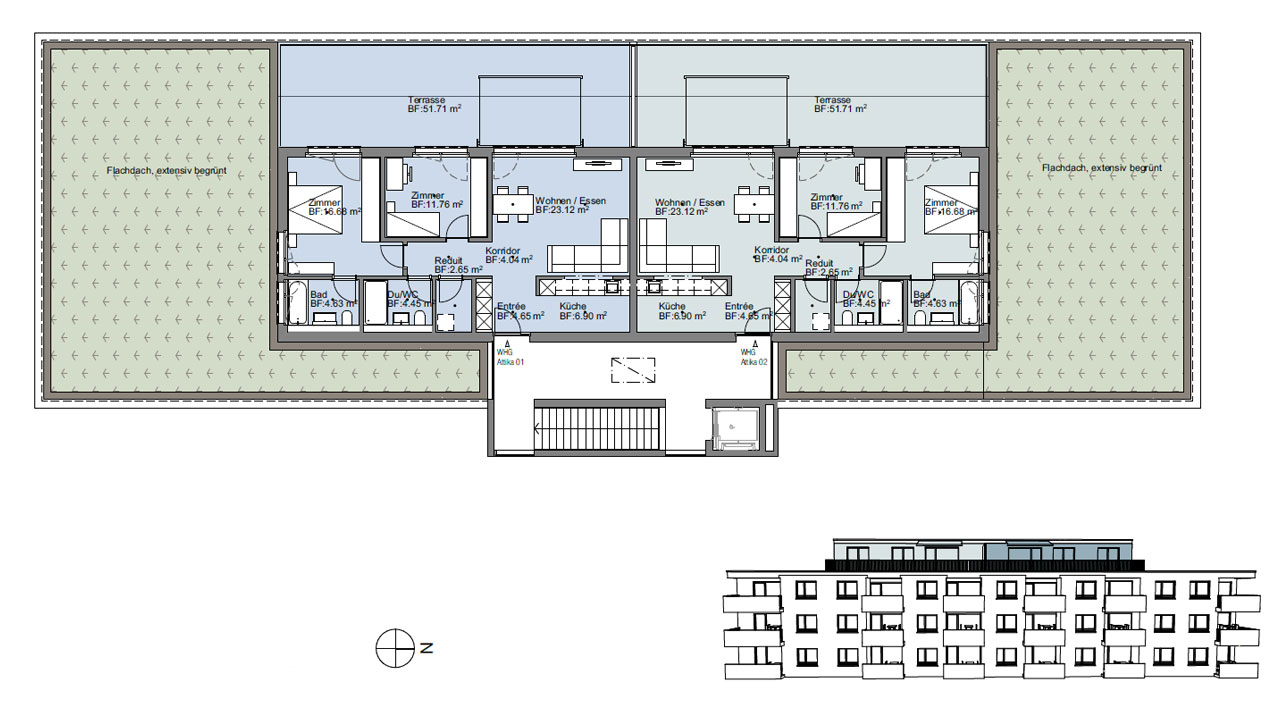
Grundriss Attika

Baubeschrieb
Rohbau
- Massivbauweise Beton, Mauerwerk
- Verputzte Kompaktfassade
- Flachdach mit PV-Anlage
- Erdsonden-Heizung
- Kunststofffenster mit 3-fach Isolierverglasung
- Grosse Balkone und Terrassen
- Rollstuhlgängige Liftanlage
- Kellerabteile pro Wohnung im UG
- Von innen zugänglicher Fahrradabstellraum Tiefgarage mit direktem Zugang zu Treppenhaus und Lift
Ausbau
- Hochwertige Bodenbeläge aus Parkett und Feinsteinzeugplatten
- Waschmaschine und Tumbler pro Wohnung
- Grosszügige Nasszellen
- Hochwertige Einbauküche mit Basalt-graue Fronten, einer stilvollen Arbeitsplatte aus schwarzem Granit und Rückwand aus Satin-farbigen Keramik sowie Bosch-Küchengeräten: Elektrokochfeld, Flachschirmhaube, Kühl-Gefrier-Kombination, Backofen / Geschirrspüler der Marke Franke
- Elektro- und Multimediaanschlüsse nach aktuellem Standard
- Elektrische Lamellenstoren
- Elektrische Sonnenstore in Attikawohnungen
- Einstellhalle mit Grundinstallation für Elektroautos
- Loftwohnungen mit Schiebetüren zwischen Zimmer und Wohnraum
Umgebung
- Naturnahe Begrünung
- Fläche mit Blumenwiese und Spielplatz
- Offener Innenhof mit gedeckten Sitzgelegenheiten Hecken und Sichtschutz
Situation / Umgebung

Ansichten Nord + Ost

Ansichten Süd + West

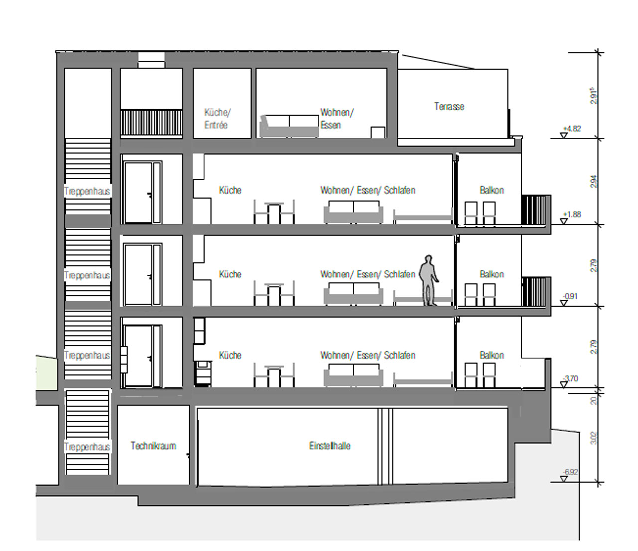
Schnitt

Visualisierungen

















